Stadt Radevormwald Oberbergischer Kreis Folge uns auf Facebook Folge uns auf Instagram
 

ProjektWatch

Am Projekt beteiligt sein und Entstehungsprozesse einzelner Baumaßnahmen mitverfolgen können? Es funktioniert!
Auf der Plattform inhk-wupperorte.de werden zukünftig sämtliche Schritte einzelner Fördermaßnahmen dokumentiert – Planung bis hin zur Fertigstellung.


Nachfolgend finden Sie Informationen und Bilder zu den einzelnen Phasen, von der Planung bis zur Fertigstellung.


Sie können in den Galerien eine Slidshow aktivieren, so dass Ihnen alle Galerien automatisch nacheinander angezeigt werden - Viel Spaß dabei!




B2 Bürgerzentrum

Planungsphase

Die Fördermaßnahme wird aus Mitteln des Europäischen Fonds für regionale Entwicklung und der Städtebauförderung NRW gefördert.

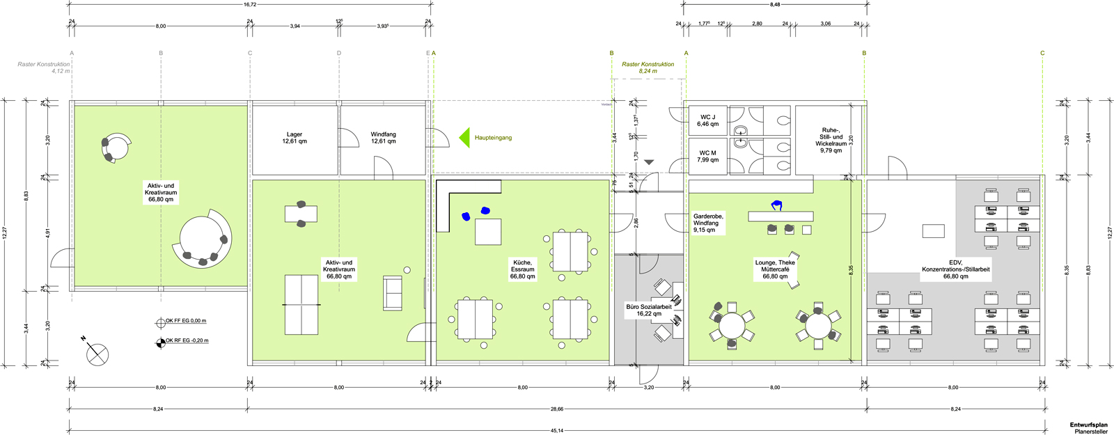
Download

Für weitere Informationen: Entwurf Grundriss Erdgeschoss als PDF-Download

PDF-Download

Zurück zur Übersicht ▲


B2 Bürgerzentrum

Bestandsphase

Bilder des aktuellen Bestands des Bürgerzentrum, zum vergrößern die Bilder anklicken!

Das Gebäude des ehemaligen evangelischen Gemeindehauses Dahlerau wurde seit dem 01.Januar 2020 bis zum Beginn der Umbauarbeiten am 16. Mai 2022 als Bürgerzentrum genutzt. Bereits vor dem Umbau dienten die Räumlichkeiten als Büro des Quartiermanagements sowie für Beratungs- und Freizeitangebote, Vereinstreffen und Nachbarschaftshilfe. In den 60er Jahren errichtet, sind die Substanz und die Ausstattung mittlerweile in die Jahre gekommen. Mit dem Umbau soll das Gebäude als zentraler Ort für die Bürger*innen und Aktivitäten in den Wupperorten erneut mit Leben gefüllt werden.

Zurück zur Übersicht ▲


Bauphase

Bilder der aktuellen Bauphase des Bürgerzentrum, zum vergrößern die Bilder anklicken!

Seit dem 16. Mai 2022 wird das Bürgerzentrum umgebaut und modernisiert. Es entstehen moderne, multifunktional nutzbare Räume, vom bezugsfertigen Büro zur Nutzung durch Vereine und Gruppen oder durch Co-Working bis hin zum attraktiven Saal für größere Veranstaltungen und Aktionen.

Zurück zur Übersicht ▲


Resultat

Bilder der Resultate des Bürgerzentrum, zum vergrößern die Bilder anklicken!

Im Bürgerzentrum am Siedlungsweg wurden die Bauarbeiten im Sommer 2023 beendet. Das Erdgeschoss verfügt über einen großen Saal, Büroräume, ein Konferenzraum, ein großes Foyer sowie eine Küche, die neu gestaltet und erweitert wurde. Im Obergeschoss befindet sich ein Co-Working-Space mit freiem WLAN-Zugang. Nicht nur die neuen Räume im Gebäude, sondern auch die im Außenbereich neu angelegten Terrassen können für Angebote und Veranstaltungen genutzt werden. Die Eröffnungsfeier des Bürgerzentrums fand am 27.08.2023 statt. Das umgebaute Bürgerzentrum ist nun ein neuer Ort der Begegnung, an dem unterschiedliche Vereine, Organisationen und Privatpersonen sowohl zum Arbeiten, in der Freizeit und als auch zum Informationsaustausch zusammenkommen sollen.

Info: Vereine können das Bürgerzentrum kostenlos für ihre Veranstaltungen mieten. Privatpersonen zahlen eine kleine Gebühr. Um die Vermietung kümmert sich die städtische Mitarbeiterin Natali Kloppert.

Kontaktdaten

Natali Kloppert
✆ Telefon: 02195 - 932177
✉ E-Mail: natali.kloppert@radevormwald.de

Download

Für weitere Informationen: "Nutzungskonzept für das Bürgerzentrum für die Wupperorte" - Flyer "CoWorking" und Sachbericht zum Verwendungsnachweisals PDF-Download

PDF-Download Flyer-Download PDF-Download

Zurück zur Übersicht ▲


B5 Kinder- und Jugendtreff LIFE

Planungsphase

Die Fördermaßnahme wird aus Mitteln des Europäischen Fonds für regionale Entwicklung und der Städtebauförderung NRW gefördert.

Download

Für weitere Informationen: Entwurf Grundriss Erdgeschoss als PDF-Download

PDF-Download

Zurück zur Übersicht ▲


B5 Kinder- und Jugendtreff LIFE

Bestandsphase

Bilder des aktuellen Bestands des Kinder- und Jugendtreff LIFE, zum vergrößern die Bilder anklicken!

Die Räumlichkeiten des Jugendzentrums LIFE auf dem Schulhof der GGS Wupper sind stark in die Jahre gekommen und decken den notwendigen Raumbedarf nicht ab. Eine Erweiterung soll weiterhin die Arbeit des offenen Jugendtreffs ermöglichen, aber auch um weitere Beratungs- und Freizeitangebote ergänzt werden.

Zurück zur Übersicht ▲


Bauphase

Bilder der aktuellen Bauphase des Kinder- und Jugendtreff LIFE, zum vergrößern die Bilder anklicken!

Die Räumlichkeiten des Jugendzentrums LIFE erhalten eine umfassende Modernisierung mit Räumen und Nutzungsmöglichkeiten für Familien mit Kindern unterschiedlichen Alters, für Jugendliche sowie weitere Freizeit - und Beratungsangebote.

Zurück zur Übersicht ▲


Resultat

Bilder der Resultate des Kinder- und Jugendtreff LIFE, zum vergrößern die Bilder anklicken!

Die Bauarbeiten am städtischen Kinder- und Jugendtreff "Life" Auf der Brede sind beendet. Die Eröffnungsfeier des Jugendzentrums fand am 28.07.2023 statt. Das komplette Gebäude des Jugendtreffs wurde modernisiert, so dass offene und helle Räume entstanden sind, in denen mehr Angebote für die Jugendlichen durch das Team des Jugendtreffs umgesetzt werden können. Der Durchbruch zu den ehemalig zum TuSpo Dahlhausen gehörenden Räumlichkeiten dient nun als Seminarraum. Zusätzlich wurde eine neue Küche eingebaut und die WC-Anlagen komplett erneuert.

Download

Für weitere Informationen: Sachbericht zum Verwendungsnachweis als PDF-Download

PDF-Download

Zurück zur Übersicht ▲


E1 Activity Konzept – Teilbereich Spielplatz

Planungsphase

Die Fördermaßnahme wird aus Mitteln des Europäischen Fonds für regionale Entwicklung und der Städtebauförderung NRW gefördert.

Download

Für weitere Informationen: Städtebaulicher Entwurf als PDF-Download

PDF-Download

Zurück zur Übersicht ▲


E1 Activity Konzept – Teilbereich Spielplatz

Bestandsphase

Bilder des aktuellen Bestands des Activity Konzept – Teilbereich Spielplatz (GGS Wupper), zum vergrößern die Bilder anklicken!

Vor dem Umbau der Sportanlage wurde der nicht mehr zeitgemäße Tennenbeläge des Sportplatzes aufgrund der Verletzungsgefahr bemängelt. Auch war ein Teilnehmen für alle aufgrund der mangelnden Barrierefreiheit nicht gewährleistet.

Zurück zur Übersicht ▲


Bauphase

Bilder der aktuellen Bauphase des Activity Konzept – Teilbereich Spielplatz (GGS Wupper), zum vergrößern die Bilder anklicken!

Im Sommer 2022 wurde der Soccerplatz saniert, ihm folgte zwischen Juli 2021 und Januar 2022 das Aufstellen der neuen Spielgeräte und Sitzgelegenheiten, außerdem wurden Spielbodenmarkierungen ergänzt.

Zurück zur Übersicht ▲


Resultat

Die neuen Geräte und Anlagen werden von Kindern der Grundschule, des Kindergartens, des Jugendtreffs LIFE sowie von Besuchern benutzt. Die Qualität der Spielgeräte wurde verbessert, es entstand auch durch das Aufstellen von generationenübergreifenden Fitnessgeräten und Sitzgelegenheiten ein Mehrgenerationenplatz zur Nutzung von "Alt und Jung".

Download

Für weitere Informationen: Sachbericht zum Verwendungsnachweis als PDF-Download

PDF-Download

Zurück zur Übersicht ▲


E6 Activity Konzept – Teilbereich Sportplatz

Planungsphase

Die Fördermaßnahme wird aus Mitteln des Europäischen Fonds für regionale Entwicklung und der Städtebauförderung NRW gefördert.

Download

Für weitere Informationen: Städtebaulicher Entwurf als PDF-Download

PDF-Download

Zurück zur Übersicht ▲


E6 Activity Konzept – Teilbereich Sportplatz

Bestandsphase

Bilder des aktuellen Bestands des Activity Konzept – Teilbereich Sportplatz, zum vergrößern die Bilder anklicken!

Vor dem Umbau der Sportanlage wurde der nicht mehr zeitgemäße Tennenbeläge des Sportplatzes aufgrund der Verletzungsgefahr bemängelt. Auch war ein Teilnehmen für alle aufgrund der mangelnden Barrierefreiheit nicht gewährleistet.

Zurück zur Übersicht ▲


Bauphase

Bilder der aktuellen Bauphase des Activity Konzept – Teilbereich Sportplatz, zum vergrößern die Bilder anklicken!

Die Bauarbeiten konnten im November 2020 abgeschlossen werden.

Zurück zur Übersicht ▲


Resultat

Bilder der Resultate des Activity Konzept – Teilbereich Sportplatz, zum vergrößern die Bilder anklicken!

Anstelle des Tennenbelages, der für die Sportler ein hohes Verletzungsrisiko mit sich brachte, wurde ein neuer Kunststoffrasen auf dem Großspielfeld verlegt, die Kurzstreckenlaufbahn wurde erneuert und neue barrierefreie Fitnessgeräte wurden aufgestellt. Eine dreireihige Stufenanlage, die mit einer rollstuhlgerechten Rampe versehen wurde, ermöglicht zudem ein bequemes Zuschauen und barrierefreie Sportevents. Die Anlage wurde am 23. Oktober 2021 mit einem Eröffnungsspiel und einem aufwendigen Rahmenprogramm eröffnet.

Zurück zur Übersicht ▲


F1 Ökologische Aufwertung Schulhof Grundschule

Planungsphase

Die Fördermaßnahme wird aus Mitteln des Europäischen Fonds für regionale Entwicklung und der Städtebauförderung NRW gefördert.

Download

PDF-Download

Zurück zur Übersicht ▲


F1 Ökologische Aufwertung Schulhof Grundschule

Bestandsphase

Bilder des aktuellen Bestands der ökologischen Aufwertung Schulhof Grundschule, zum vergrößern die Bilder anklicken!

Der Schulhof ist in großen Teilen mit Steinplatten versiegelt. Hier gibt es Absenkungen und mögliche Stolperfallen. Die Treppenanlagen, die die einzelnen Flächen verbinden, müssen für die Sicherheit ausgebessert und sollen in diesem Zug barrierefrei gestaltet werden. Das Amphitheater östlich des Schuldhofgeländes ist in einem trostlosen verwitterten Zustand. Die Farbe auf den Steinanlagen ist kaum noch zu erkennen. Auch die angrenzende Rasenfläche oberhalb des Sportplatzes wird nicht genutzt.

Zurück zur Übersicht ▲


Bauphase

Zur Entsiegelung von Teilen des Schulhofs sollen auflockernde Elemente im Boden und Grünflächen eingeplant werden. Die Treppenanlage wird saniert und bekommt barrierefreie Übergange an den einzelnen Treppenanlagen. Auch das Amphitheater soll aufgewertet werden. Die nicht genutzte Rasenfläche oberhalb des Sportplatzes soll in einen Schulgarten umgestaltet werden. Dies dient zum einen der ökologischen Aufwertung aber auch der Schule die Möglichkeit, den Schülern den Anbau von Pflanzen näherzubringen.

Zurück zur Übersicht ▲


Resultat

Bilder der Resultate der ökologischen Aufwertung Schulhof Grundschule, zum vergrößern die Bilder anklicken!

Die Feuerwehrzufahrt wurde ökologisch gepflastert, so dass das Regenwasser im Boden versickern kann.
Das am Amphitheater angrenzende Feuchtbiotop wurde gesichert und erneuert.
Auf den Rasenflächen verteilt wurden Hochbeete errichtet, in denen die Kinder Gemüse und Kräuter anbauen können. In diesem Zusammenhang wurde auch eine Kräuterschnecke angelegt. Totholzhügel und Insektenhotels wurden aufgebaut, sodass auch Insekten und Nager ein Winterquartiert haben. Ebenso wurde ein Igelunterschlupf aufgestellt und Nistkästen in den Bäumen am Amphitheater aufgehängt.
Auf der Wiese oberhalb des Sportplatzes wurden Obstbäume gepflanzt.

Download

Für weitere Informationen: Sachbericht zum Verwendungsnachweis als PDF-Download

PDF-Download

Zurück zur Übersicht ▲


Neubau Kita Auf der Brede

Planungsphase

Informationen folgen!

Zurück zur Übersicht ▲


Neubau Kita Auf der Brede

Bestandsphase

Bilder des aktuellen Bestands der Kita Auf der Brede, zum vergrößern die Bilder anklicken!

Das neue Gebäude ensteht auf einem Areal mit einer Grundfläche von 1.200 Quadratmetern. Es handelt sich dabei um einen Holzrahmenbau, der aus Fertigelementen besteht.

Zurück zur Übersicht ▲


Bauphase

Bilder der aktuellen Bauphase des Neubau´s Kita Auf der Brede, zum vergrößern die Bilder anklicken!

Nähere Infos zum Spatenstich findest du hier: ▶ Online-Artikel

Der Neubau der Kita Auf der Brede geht mit großen Schritten voran. Innerhalb kürzester Zeit wurde die Außenhülle des Gebäudes errichtet. Die Arbeiten liegen bislang im Zeitplan. Die Fertigstellung ist für den 18. Juli geplant und der erste Tag in der neuen Kita soll der 19. August sein.

Zeitungsartikel RP-Online vom 07.02.2024 / Quelle: rp online

PDF-Download

Zurück zur Übersicht ▲


Resultat

Informationen und Bilder folgen!

Zurück zur Übersicht ▲